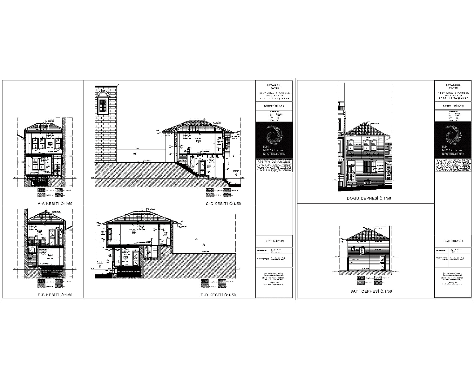
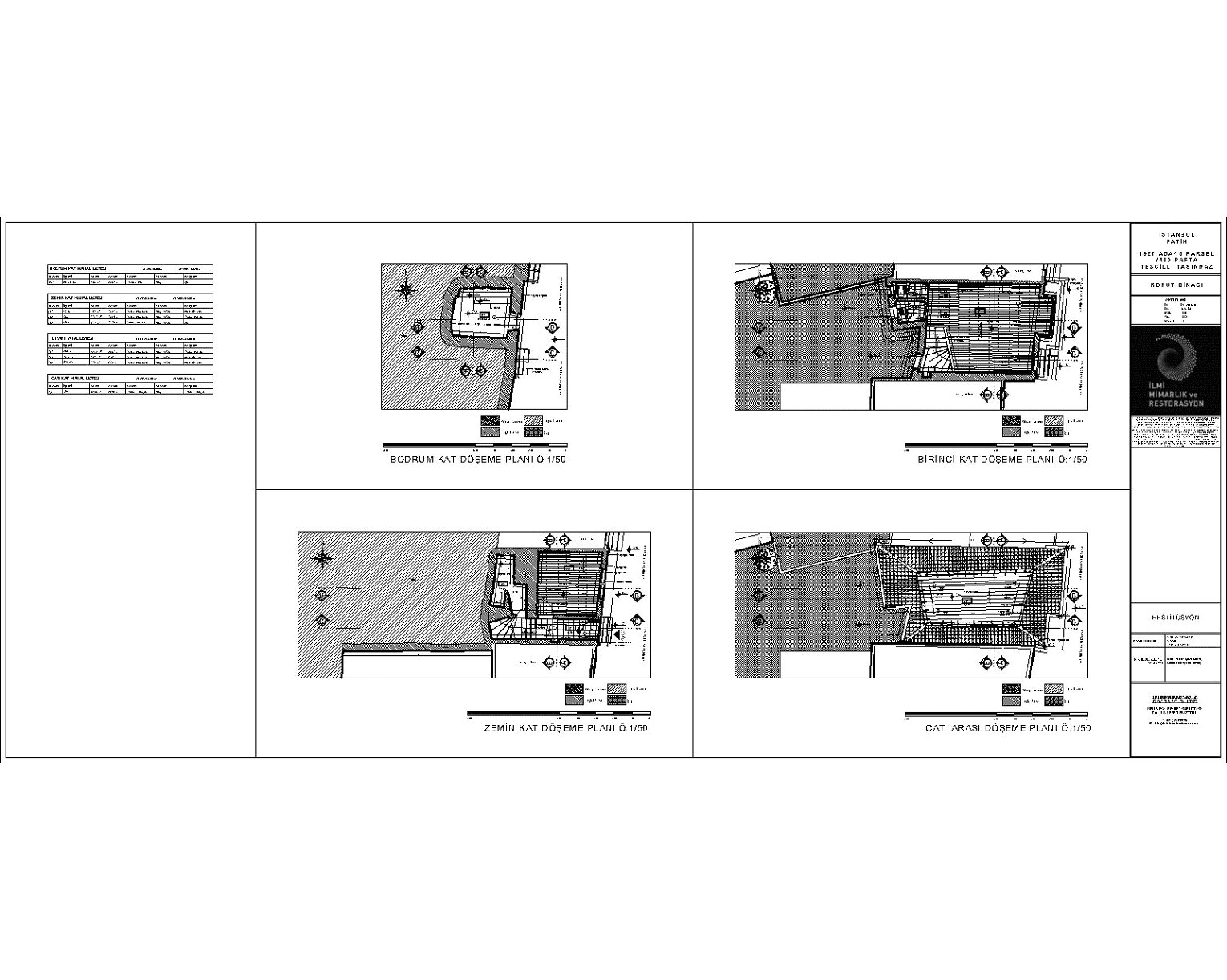
2. Dereceden Ahşap Konut
Yapı: 2. Dereceden Ahşap Konut
Dönem: 19. yy. Başları
Mimar: Anonim
Tip: Konut
Proje Yılı: 2022-2023, Mimar Mine Yalçın Akyüz
Lokasyon: Fatih
Onay: Fatih Belediyesi (KUDEB Birimi), İstanbul Kültür Varlıklarını Koruma
Proje: Restorasyon, Röleve ve Restitüsyon Projelerinin Hazırlanması
İşveren: Mülk Sahibi
